Plot 64 - Sherecroft Meadows
3-Bedroom House
Sherecroft Meadows
Botley SO30 2GB
£194,000
Based on a 40% Share
THE AUDLEY
Featuring a kitchen / dining room with a separate living room both with double doors out to your garden. The kitchen is fitted with an oven, hob and hood. On this floor, you'll also find a WC and storage cupboard.
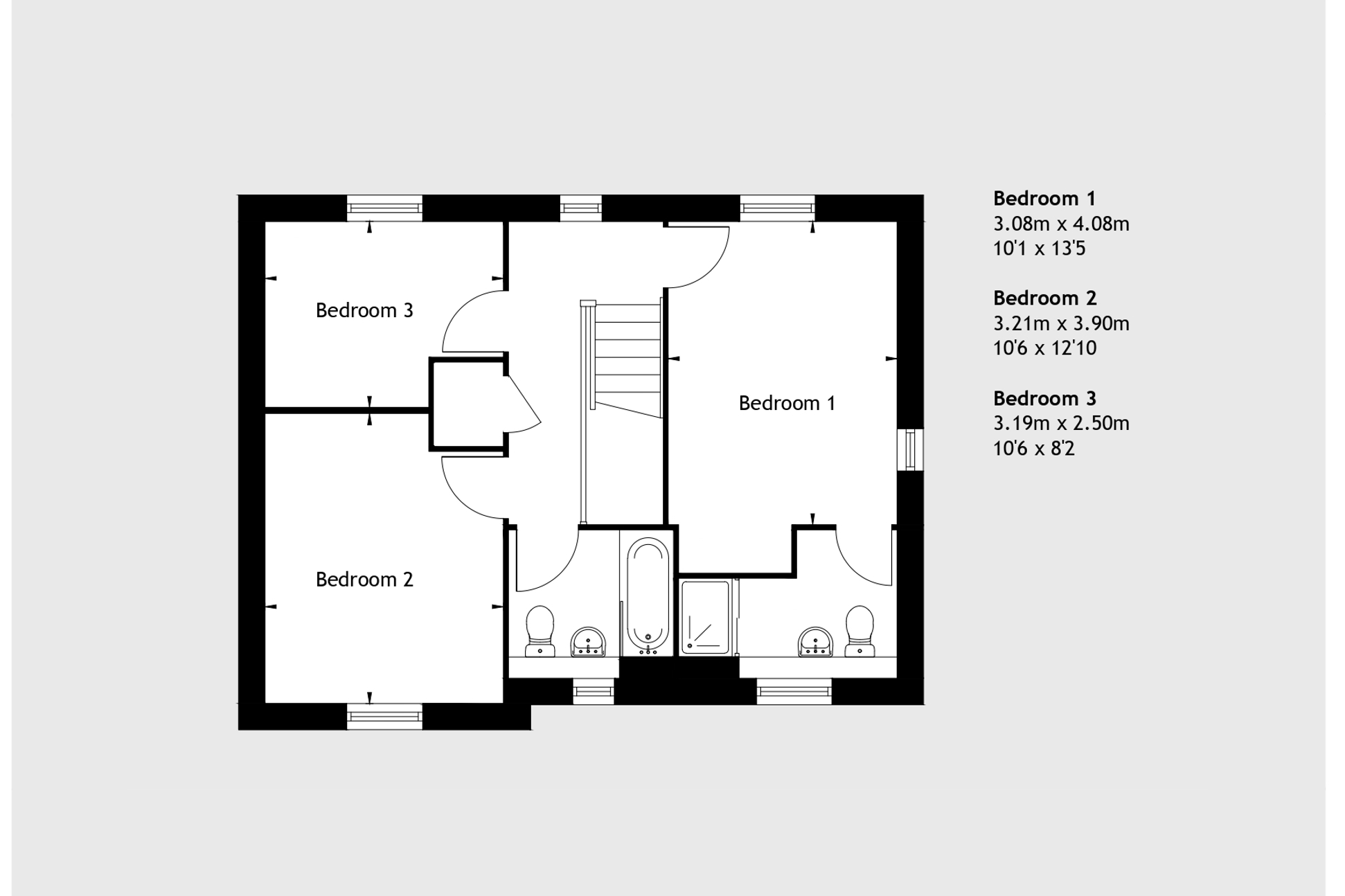
Upstairs, there are three bedrooms with an ensuite to the master. And, a bathroom which has a modern, white suite. Outside, you'll have your own turfed garden, garage and parking.
- Tenure: Leasehold.
- Length of lease: 990 years.
- Reservation fee: £500.
- Predicted council tax band: Newbuild, band to be determined.
- Service charge is reviewed once a year.
Features
- 3 Bedrooms
- 2 Bathrooms
- Living room with patio doors
- Separate kitchen / dining room
- Downstairs WC
- Turfed back garden
- Your own parking
Floor Plans
Ground floor

First floor

Specifications
-
- Vinyl flooring to hall, kitchen / dining room, bathroom and ensuite
- Carpets to living / dining room, stairs, landing and bedrooms
- White matte walls and ceilings
- Mains-operated smoke and carbon monoxide detectors
- Ample double power sockets throughout
- Telephone point to living room
- TV point to living / dining room and master bedroom
- Fibre broadband connection available
-
- Neutral fitted kitchen units and soft-close doors and drawers
- Worktops with matching upstand
- 1 ½ bowl stainless-steel sink with chrome mixer tap
- Built-in hob, stainless-steel single fan oven, and cooker hood
- Glass splashback behind hob
- Built-in washing machine
- Removable unit, plumbing and power for dishwasher
-
- Roca white sanitaryware
- Chrome mixer taps
- Porcelanosa grey tiled splashback above sink and full height above bath and shower
- Thermostatic shower over bath with glass shower screen* Please speak to our Sales Executive for more information.
- Heated chrome towel rail to bathroom and ensuite* Please speak to our Sales Executive for more information.
-
- Downlights to kitchen, WC, bathroom, and ensuite*
- Pendant lighting throughout
- Underfloor heating to ground floor and radiators to first floor
- Air source heat pumps, Please speak to our Sales Executive for more information.
-
- Patio area and turfed back garden
- Outside tap
- Light to front and back of houses
- Water Butt to back gardens
Overview
- Vinyl flooring to hall, kitchen / dining room, bathroom and ensuite
- Carpets to living / dining room, stairs, landing and bedrooms
- White matte walls and ceilings
- Mains-operated smoke and carbon monoxide detectors
- Ample double power sockets throughout
- Telephone point to living room
- TV point to living / dining room and master bedroom
- Fibre broadband connection available

Kitchen
- Neutral fitted kitchen units and soft-close doors and drawers
- Worktops with matching upstand
- 1 ½ bowl stainless-steel sink with chrome mixer tap
- Built-in hob, stainless-steel single fan oven, and cooker hood
- Glass splashback behind hob
- Built-in washing machine
- Removable unit, plumbing and power for dishwasher

WC, bathroom and ensuite
- Roca white sanitaryware
- Chrome mixer taps
- Porcelanosa grey tiled splashback above sink and full height above bath and shower
- Thermostatic shower over bath with glass shower screen* Please speak to our Sales Executive for more information.
- Heated chrome towel rail to bathroom and ensuite* Please speak to our Sales Executive for more information.

Heating and lighting
- Downlights to kitchen, WC, bathroom, and ensuite*
- Pendant lighting throughout
- Underfloor heating to ground floor and radiators to first floor
- Air source heat pumps, Please speak to our Sales Executive for more information.

Outside
- Patio area and turfed back garden
- Outside tap
- Light to front and back of houses
- Water Butt to back gardens

Development site plan
Download site plan
Local Area
-
These new homes are within walking distance of a post office, pharmacy, dentist and convenience stores. Plus, you’ll have a choice of pubs and restaurants to choose from.
-
Co-op Food - Botley
7 minutes
-
The Dolphin pub
7 minutes
-
Regiannas Italian
8 minutes
-
Hillier Garden Centre Botley
6 minutes
-
River Hamble Country Park
11 minutes
-
Co-op Food - Botley
7 minutes
-
Sherecroft Meadows has a great choice of schools nearby, making it ideal for new or growing families.
-
Botley C Of E Primary School
12 minutes
-
Alphabets Pre School
16 minutes
-
Curdridge Primary School
3 minutes
-
Deer Park Secondary School
6 minutes
-
Wildern School
7 minutes
-
Botley C Of E Primary School
12 minutes
-
Living at Sherecroft Meadows makes for a great commute with direct links to London Waterloo in just over an hour and a half.
-
Nearest bus stop
3 minutes
-
Botley train station
9 minutes
-
Hedge End
6 minutes
-
M27
8 minutes
-
Whiteley
10 minutes
-
Nearest bus stop
3 minutes
Local area
These new homes are within walking distance of a post office, pharmacy, dentist and convenience stores. Plus, you’ll have a choice of pubs and restaurants to choose from.
-
7 minutes
Co-op Food - Botley
-
7 minutes
The Dolphin pub
-
8 minutes
Regiannas Italian
-
6 minutes
Hillier Garden Centre Botley
-
11 minutes
River Hamble Country Park
Schools
Sherecroft Meadows has a great choice of schools nearby, making it ideal for new or growing families.
-
12 minutes
Botley C Of E Primary School
-
16 minutes
Alphabets Pre School
-
3 minutes
Curdridge Primary School
-
6 minutes
Deer Park Secondary School
-
7 minutes
Wildern School
Transport
Living at Sherecroft Meadows makes for a great commute with direct links to London Waterloo in just over an hour and a half.
-
3 minutes
Nearest bus stop
-
9 minutes
Botley train station
-
6 minutes
Hedge End
-
8 minutes
M27
-
10 minutes
Whiteley
Shared Ownership
In this section, you'll find lots of handy information about buying Shared Ownership home, including how to know if you're eligible, and what home improvements you can make.
How it worksNot sure if you're eligible?
How to applyHelp & advice
We've a whole host of guides covering lots of topics. So whether you're a first-time buyer, second stepper, Shared Ownership seller or existing home owner in need of some guidance, check out our help and advice section.
Find out moreWondering about your next steps?
Buying guidesSimilar Developments

Primrose Gardens
Eastleigh
Primrose Gardens is a welcoming new community of three and four bedroom shared ownership houses in Eastleigh. Just minutes from the heart of town, you’ll have shops, cafés ...

Alexandra Place
Alton
Alexandra Place is a charming new development of two and three bedroom Shared Ownership houses in Alton. Nestled in this historic market town, you’ll find a lively high ...
Find Us
By appointment only.
Address
Sherecroft Meadows
Mill Hill
Botley
SO30 2GB
We're award winning




