Loxwood Fields
2, 3 & 4 bedroom homes
Alfold GU6 8HL
NEW HOMES NOW SELLING
Loxwood Fields is a new collection of two, three and four bedroom Shared Ownership homes in Alfold. With a Post Office, local shop, café and vets right nearby, everyday life feels easy and connected.
We now have our final home two bedroom show home available which is ready to move into.
Fancy a countryside stroll or a weekend adventure? Surrey’s rolling landscapes and nearby Cranleigh – with its shops, eateries and weekly market – are just a short drive away.
Perfect for families or first-time buyers, Loxwood Fields provides room to grow in a friendly, peaceful village.
• Tenure: Leasehold.
• Length of lease: 990 years.
• Reservation fee: £500.
• Predicted council tax band: New build properties, band to be determined.
• Service charge is reviewed once a year
Features
- Thoughtfully designed 2, 3 and 4 bedroom homes
- Village living with a Post Office, shop, pub and café just minutes from your door
- Just 9 minutes’ drive to Cranleigh, with its high street, local shops and weekly market
- Quick trains to London Waterloo and Gatwick Airport from nearby Guildford station
- Surrounded by Surrey countryside, with plenty of walking routes nearby
Available Homes
Plot 21
Full price £417,500
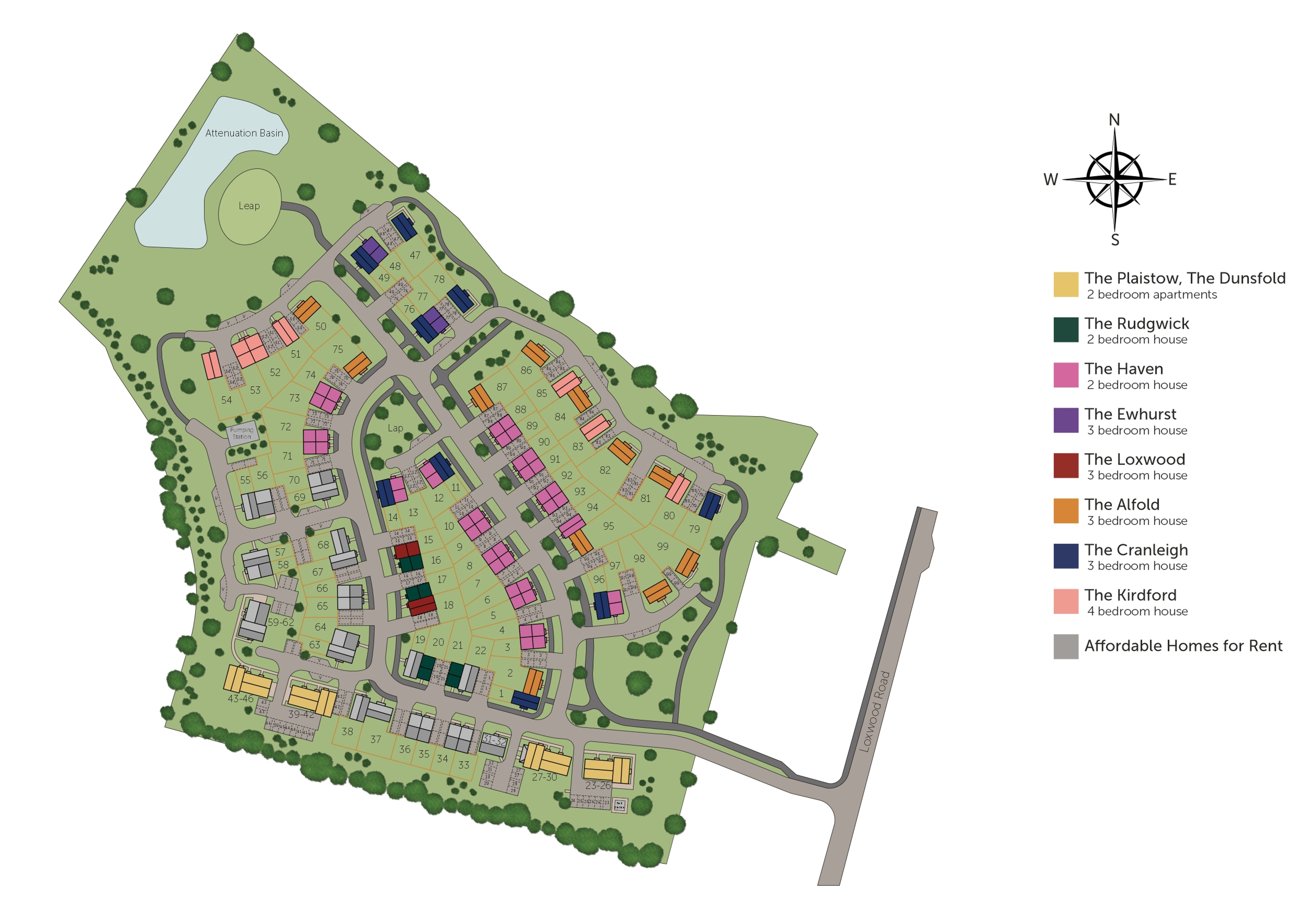
Development site plan
Download site plan
Local Area
-
Discover best of Surrey from our new homes in Alfold. Take an 11-minute stroll to Stretched & Fired for a bite to eat, and explore the local shops along the village high street. Knowle Country Park is a short drive away for walks, as is Cranleigh Leisure Centre for swimming and fitness activities.
-
The Alfold Barn
6 minutes
-
Stretched & Fired Alfold
11 minutes
-
Alfold Post Office
13 minutes
-
The Sir Roger Tichborne pub
22 minutes
-
Sainsbury’s supermarket
8 minutes
-
The Alfold Barn
6 minutes
-
At our new homes in Alfold, families have great schooling options nearby. Loxwood Pre-School and Primary are just 6 minutes by car, with Rudgwick and Park Mead Primaries close by. Older students can reach Guildford College in 22 minutes, and Farnham College is 38 minutes away for further study.
-
Loxwood Pre-School and Primary School
6 minutes
-
Rudgwick Primary School
7 minutes
-
Park Mead Primary School
11 minutes
-
Guildford College
22 minutes
-
Farnham College
38 minutes
-
Loxwood Pre-School and Primary School
6 minutes
-
Our new homes near Cranleigh are close to the A272 and the A3 for easy access to cities and countryside. The nearest bus stop is also just 2 minutes on foot, and Guildford station is 18 minutes by car with fast trains to London. Planning a holiday abroad? Gatwick Airport is just 30 minutes away.
-
Nearest bus stop
2 minutes
-
A272
12 minutes
-
Guildford train station
18 minutes
-
A3
22 minutes
-
London Gatwick Airport
30 minutes
-
Nearest bus stop
2 minutes
Local area
Discover best of Surrey from our new homes in Alfold. Take an 11-minute stroll to Stretched & Fired for a bite to eat, and explore the local shops along the village high street. Knowle Country Park is a short drive away for walks, as is Cranleigh Leisure Centre for swimming and fitness activities.
-
6 minutes
The Alfold Barn
-
11 minutes
Stretched & Fired Alfold
-
13 minutes
Alfold Post Office
-
22 minutes
The Sir Roger Tichborne pub
-
8 minutes
Sainsbury’s supermarket
Schools
At our new homes in Alfold, families have great schooling options nearby. Loxwood Pre-School and Primary are just 6 minutes by car, with Rudgwick and Park Mead Primaries close by. Older students can reach Guildford College in 22 minutes, and Farnham College is 38 minutes away for further study.
-
6 minutes
Loxwood Pre-School and Primary School
-
7 minutes
Rudgwick Primary School
-
11 minutes
Park Mead Primary School
-
22 minutes
Guildford College
-
38 minutes
Farnham College
Transport
Our new homes near Cranleigh are close to the A272 and the A3 for easy access to cities and countryside. The nearest bus stop is also just 2 minutes on foot, and Guildford station is 18 minutes by car with fast trains to London. Planning a holiday abroad? Gatwick Airport is just 30 minutes away.
-
2 minutes
Nearest bus stop
-
12 minutes
A272
-
18 minutes
Guildford train station
-
22 minutes
A3
-
30 minutes
London Gatwick Airport
Similar Developments

Tillingbourne Gardens - Shared Ownership
Gomshall
Tillingbourne Gardens is a new collection of one, two, three and four bedroom Shared Ownership homes, set in the pretty village of Gomshall. These homes are now ready to move ...

Manorwood
West Horsley
Welcome to Manorwood - a collection of new three bedroom homes nestled in the sought-after location of West Horsley, Surrey. Ideal for work and leisure, you’ll have great ...

Warbler Park
Normandy
Warbler Park is a new collection of two and three bedroom homes set in the picturesque village of Normandy. Situated close to Normandy Common and Loseley Park, you’ll be ...
Find Us
Our Marketing Suite is open every Tuesday to Saturday, 10.00am - 5.00pm.
Address
Loxwood Fields
Loxwood Road
Alfold
GU6 8HL
We're award winning




