You are here:

Plot 11 - Ambia

2-Bedroom Flat

Ambia
Maidenhead SL6 8XD Local area connection required

TYPE C02

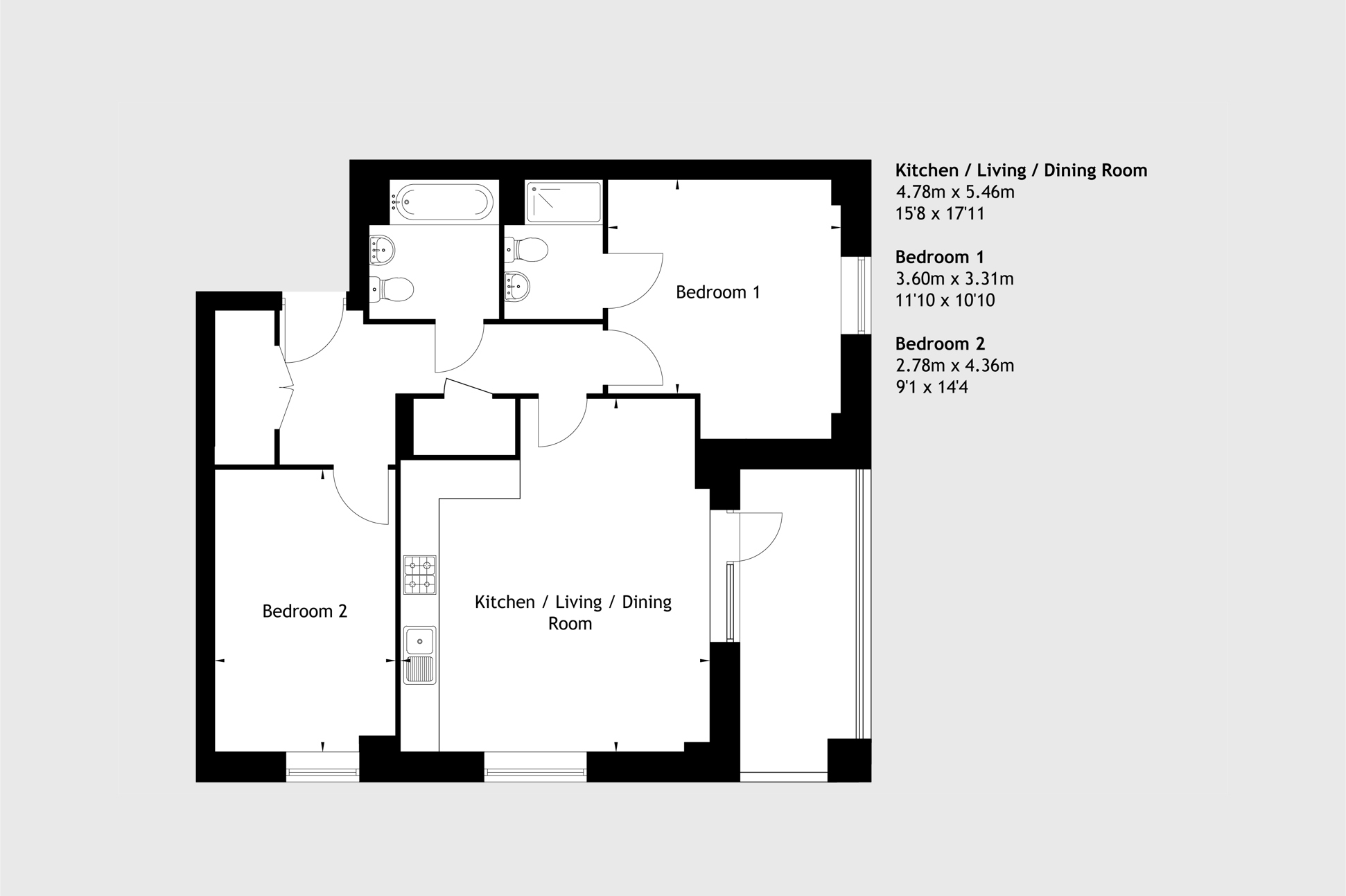
Featuring a kitchen / living / dining room with door out to your balcony. The kitchen is fitted with an oven, hob and hood.

There are two comfortable bedrooms, with an ensuite and fitted wardrobe to the master. The bathroom has a modern, white suite. 

You'll also have your own parking space.

  • Tenure: Leasehold.
  • Length of lease: 250 years.
  • Reservation fee: £500.
  • Predicted council tax band: New build properties, band to be determined.
  • Service charge is reviewed once a year.

Features

  • Beds 2 Bedrooms
  • Bath 2 Bathrooms
  • Tick First floor apartment
  • Tick Open-plan kitchen / living / dining room
  • Tick Fitted kitchen with oven, hob and hood
  • Tick Fitted wardrobe and ensuite to master bedroom
  • Tick Your own balcony and parking space

Floor Plans

Floorplan

Use two fingers to zoom
floor plan

Block layout

Use two fingers to zoom
floor plan

Email floor plans

Share floor plans

  • floor plan image
  • floor plan image

Specifications

    • Luxury vinyl tiles in White Ash to hall, kitchen, bathroom and ensuite
    • Grey carpets to bedrooms
    • White matte walls and ceilings
    • Fitted wardrobe to master bedroom
    • Mains-operated smoke, heat and carbon monoxide detectors
    • Ample double power sockets with USB points throughout
    • Telephone point to living room and TV aerial point to living room and bedrooms
    • Space and plumbing for washing machine in utility cupboard
    • Fitted Symphony kitchen featuring grey soft-close doors and drawers with white units
    • Grey worktops with matching upstand
    • 1 ½ bowl stainless-steel sink with chrome mixer tap
    • Hotpoint ceramic hob, stainless-steel single fan oven, and telescopic extractor hood
    • Integrated Hotpoint fridge freezer
    • Removal unit for dishwasher with plumbing and electric provided
    • Ideal standard white sanitaryware with dual-flush WC
    • Chrome taps
    • Ceramic tiled splashback above sink and full height above bath and shower
    • Mixer shower over bath with glass shower screen to bathroom
    • Thermostatic mixer shower with glass shower screen to ensuite
    • Shaver socket to bathroom
    • Heated chrome towel rail to bathroom
    • Downlights to hall, kitchen, bathroom and ensuite
    • Pendant lighting to living room and bedrooms
    • Gas boiler
    • Mechanical ventilation heat recovery system
    • Parking spaces to selected plots, with infrastructure ready for EV charging to be installed
    • Traditional build
    • Fibre to premises
    • Mains gas and electricity
    • Mains water and sewerage

OVERVIEW

  • Luxury vinyl tiles in White Ash to hall, kitchen, bathroom and ensuite
  • Grey carpets to bedrooms
  • White matte walls and ceilings
  • Fitted wardrobe to master bedroom
  • Mains-operated smoke, heat and carbon monoxide detectors
  • Ample double power sockets with USB points throughout
  • Telephone point to living room and TV aerial point to living room and bedrooms
  • Space and plumbing for washing machine in utility cupboard
OVERVIEW

KITCHEN

  • Fitted Symphony kitchen featuring grey soft-close doors and drawers with white units
  • Grey worktops with matching upstand
  • 1 ½ bowl stainless-steel sink with chrome mixer tap
  • Hotpoint ceramic hob, stainless-steel single fan oven, and telescopic extractor hood
  • Integrated Hotpoint fridge freezer
  • Removal unit for dishwasher with plumbing and electric provided
KITCHEN

BATHROOM

  • Ideal standard white sanitaryware with dual-flush WC
  • Chrome taps
  • Ceramic tiled splashback above sink and full height above bath and shower
  • Mixer shower over bath with glass shower screen to bathroom
  • Thermostatic mixer shower with glass shower screen to ensuite
  • Shaver socket to bathroom
  • Heated chrome towel rail to bathroom
BATHROOM

HEATING AND LIGHTING

  • Downlights to hall, kitchen, bathroom and ensuite
  • Pendant lighting to living room and bedrooms
  • Gas boiler
  • Mechanical ventilation heat recovery system
HEATING AND LIGHTING

IMPORTANT INFORMATION

  • Parking spaces to selected plots, with infrastructure ready for EV charging to be installed
  • Traditional build
  • Fibre to premises
  • Mains gas and electricity
  • Mains water and sewerage
IMPORTANT INFORMATION
  • OVERVIEW
  • KITCHEN
  • BATHROOM
  • HEATING AND LIGHTING
  • IMPORTANT INFORMATION

Development site plan

Download site plan
Use two fingers to zoom
Development map showing plot locations

Local Area

  • Discover the best of town with our new builds in Maidenhead. Enjoy a swim or workout at Braywick Leisure Centre, grab a bite at The Maiden’s Head, or browse shops at Nicholsons Shopping Centre. If you fancy something different, Windsor is just 15 minutes by car for a day of culture and history.

    • Sainsbury's Sainsbury's 3 minutes Sainsbury's
    • Braywick Leisure Centre Braywick Leisure Centre 5 minutes Braywick Leisure Centre
    • The Maiden's Head pub The Maiden's Head pub 7 minutes The Maiden's Head pub
    • Nicholsons shopping centre Nicholsons shopping centre 9 minutes Nicholsons shopping centre
    • Windsor Windsor 14 minutes Windsor
  • For younger children, Riverside Primary and St Luke’s C of E are within easy reach of our new build flats in Maidenhead. Older students have plenty of nearby options too, including Desborough College and Furze Platt Senior. Buckinghamshire New University is also close by for higher education.

    • Riverside Primary School & Nursery Riverside Primary School & Nursery 3 minutes Riverside Primary School & Nursery
    • Desborough College Desborough College 4 minutes Desborough College
    • Furze Platt Senior School Furze Platt Senior School 5 minutes Furze Platt Senior School
    • St Luke's Church of England School St Luke's Church of England School 9 minutes St Luke's Church of England School
    • Buckinghamshire New University Buckinghamshire New University 16 minutes Buckinghamshire New University
  • Enjoy effortless travel from our new flats in Maidenhead. A 5-minute walk takes you to the nearest bus stop, while nearby Maidenhead station and the Elizabeth Line offer trains to London in just 25 minutes. Driving? The M4 is close by, and you can reach Heathrow Airport in a speedy 18 minutes.

    • Nearest bus stop Nearest bus stop 5 minutes Nearest bus stop
    • M4 M4 7 minutes M4
    • A404 A404 7 minutes A404
    • Maidenhead train station Maidenhead train station 14 minutes Maidenhead train station
    • Heathrow Airport Heathrow Airport 18 minutes Heathrow Airport

Local Area

Discover the best of town with our new builds in Maidenhead. Enjoy a swim or workout at Braywick Leisure Centre, grab a bite at The Maiden’s Head, or browse shops at Nicholsons Shopping Centre. If you fancy something different, Windsor is just 15 minutes by car for a day of culture and history.

  • Sainsbury's 3 minutes Sainsbury's Sainsbury's
  • Braywick Leisure Centre 5 minutes Braywick Leisure Centre Braywick Leisure Centre
  • The Maiden's Head pub 7 minutes The Maiden's Head pub The Maiden's Head pub
  • Nicholsons shopping centre 9 minutes Nicholsons shopping centre Nicholsons shopping centre
  • Windsor 14 minutes Windsor Windsor

Schools

For younger children, Riverside Primary and St Luke’s C of E are within easy reach of our new build flats in Maidenhead. Older students have plenty of nearby options too, including Desborough College and Furze Platt Senior. Buckinghamshire New University is also close by for higher education.

  • Riverside Primary School & Nursery 3 minutes Riverside Primary School & Nursery Riverside Primary School & Nursery
  • Desborough College 4 minutes Desborough College Desborough College
  • Furze Platt Senior School 5 minutes Furze Platt Senior School Furze Platt Senior School
  • St Luke's Church of England School 9 minutes St Luke's Church of England School St Luke's Church of England School
  • Buckinghamshire New University 16 minutes Buckinghamshire New University Buckinghamshire New University

Transport

Enjoy effortless travel from our new flats in Maidenhead. A 5-minute walk takes you to the nearest bus stop, while nearby Maidenhead station and the Elizabeth Line offer trains to London in just 25 minutes. Driving? The M4 is close by, and you can reach Heathrow Airport in a speedy 18 minutes.

  • Nearest bus stop 5 minutes Nearest bus stop Nearest bus stop
  • M4 7 minutes M4 M4
  • A404 7 minutes A404 A404
  • Maidenhead train station 14 minutes Maidenhead train station Maidenhead train station
  • Heathrow Airport 18 minutes Heathrow Airport Heathrow Airport

Shared Ownership

In this section, you'll find lots of handy information about buying Shared Ownership home, including how to know if you're eligible, and what home improvements you can make.

How it works

Not sure if you're eligible?

How to apply How it works

Help & advice

We've a whole host of guides covering lots of topics. So whether you're a first-time buyer, second stepper, Shared Ownership seller or existing home owner in need of some guidance, check out our help and advice section.

Find out more

Wondering about your next steps?

Buying guides Find out more

Similar Developments

INCENTIVE AVAILABLE*
Horlicks Quarter

Horlicks Quarter

Slough

Reserve your new home on or before Saturday 28 March and choose from £1,000 towards legal fees, a One4All voucher or a rail card contribution*. Welcome to Slough, one of ...

Home Apartments
READY NOW^
Sunningdale Park

Sunningdale Park

Sunningdale

Tucked within 47 acres of leafy parkland, our new homes in Ascot offer a serene slice of country living without losing touch with the city. This thoughtfully designed ...

Home Apartments
Emmer Green Drive

Emmer Green Drive

Reading

Welcome to Reading, a vibrant town where the arts, colourful culture and Reading Festival all come together to bring you closer to your neighbours, whether you’re exploring a ...

Home Houses & Apartments

Find Us

Our Marketing Suite is open Wednesday to Saturday, from 10.00am to 5.00pm.

Address

Ambia
Saint-Cloud Way
Maidenhead
SL6 8XD

Opening hours

  • Wednesday 10.00am - 5.00pm
  • Thursday 10.00am - 5.00pm
  • Friday 10.00am - 5.00pm
  • Saturday 10.00am - 5.00pm
MarkerView on Google Map

We're award winning

FTB Awards22 HC Dark (1) FTB Awards24 HC Dark BRPA WINNER Website Version WHA25 Logo Gold