Plot 68 - Allium Park
2-Bedroom House
Allium Park
Ripley GU23 6HD
Local area connection required
Total monthly payments
Example payments based on 35% share and a £9,013 deposit
THE WEY
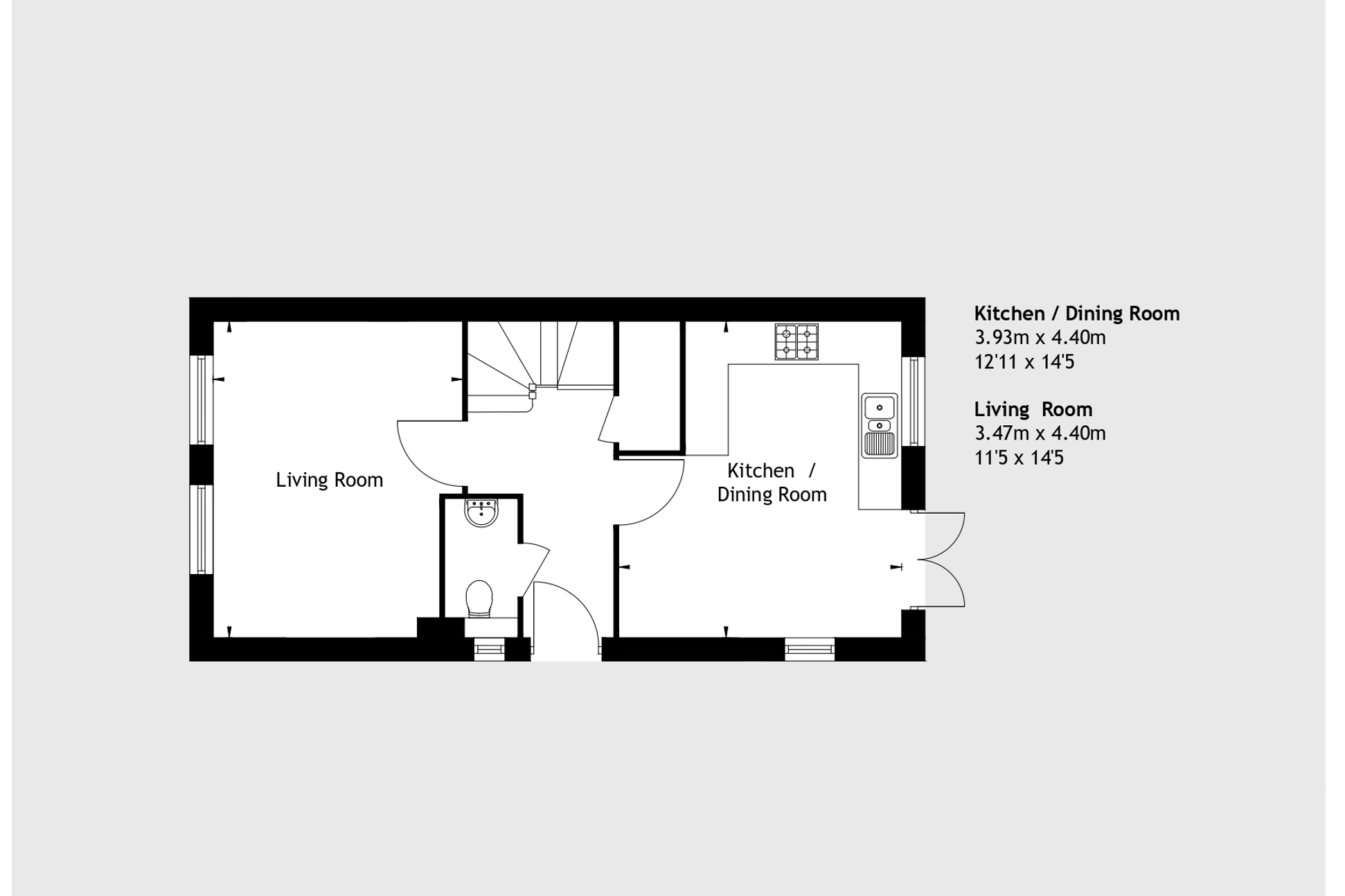
Featuring a spacious living room with dual-aspect windows. The kitchen / dining room is fitted with an oven, hob, washing machine and dishwasher. On this floor, you'll also find a WC and storage.
Upstairs, there are two double bedrooms, with a fitted wardrobe to the master. The bathroom has a modern, white suite.
You'll also have a turfed back garden and parking space.
- Tenure: Leasehold.
- Length of lease: 990 years.
- Reservation fee: £500.
- Predicted council tax band: Newbuild, band to be determined.
- Service charge is reviewed once a year.
Features
- 2 Bedrooms
- 1 Bathroom
- Spacious living room with dual-aspect windows
- Open-plan kitchen / dining room
- All flooring included
- Your own parking space
- Excellent transport links to London
Floor Plans
Ground floor

First floor

Specifications
-
- Vinyl flooring to kitchen, hall, bathroom, ensuite and WC
- Carpet to living room, stairs, landing and bedrooms
- White matte walls and ceilings
- Fibre broadband connection available
-
- Fitted kitchen units with soft-close doors and drawers
- Worktops with matching upstand
- Single bowl stainless steel sink with chrome mixer tap
- Platinum colour splashback behind hob
- Built-in Zanussi ceramic hob, stainless-steel single fan oven, and cooker hood
- Built-in washing machine
- Built-in dishwasher
-
- Roca white sanitaryware with dual-flush WC
- Porcelanosa tiled splashback above sink and full height above bath and shower
- Shower over bath with glass shower screen
- Shaver socket to bathroom
- Shaver socket to bathroom
-
- Downlights to kitchen, WC, utility room, bathroom and ensuite
- Pendant lighting to living room, hall, landing and bedrooms
- Combination boiler
-
- Patio area and turfed gardens to houses
- Outside tap to houses
- Light to front and back of houses
- Solar panels
OVERVIEW
- Vinyl flooring to kitchen, hall, bathroom, ensuite and WC
- Carpet to living room, stairs, landing and bedrooms
- White matte walls and ceilings
- Fibre broadband connection available

KITCHEN
- Fitted kitchen units with soft-close doors and drawers
- Worktops with matching upstand
- Single bowl stainless steel sink with chrome mixer tap
- Platinum colour splashback behind hob
- Built-in Zanussi ceramic hob, stainless-steel single fan oven, and cooker hood
- Built-in washing machine
- Built-in dishwasher

BATHROOMS
- Roca white sanitaryware with dual-flush WC
- Porcelanosa tiled splashback above sink and full height above bath and shower
- Shower over bath with glass shower screen
- Shaver socket to bathroom
- Shaver socket to bathroom

HEATING AND LIGHTING
- Downlights to kitchen, WC, utility room, bathroom and ensuite
- Pendant lighting to living room, hall, landing and bedrooms
- Combination boiler

OUTSIDE
- Patio area and turfed gardens to houses
- Outside tap to houses
- Light to front and back of houses
- Solar panels

Development site plan
Download site plan
Local Area
-
From our new builds in Ripley, explore RHS Garden Wisley or Clandon Park just a short drive away. In the village, enjoy the farmers’ market or dine at award-winning The Anchor. Daily essentials are 3 mins away at the Co-op, with Woking’s Victoria Place nearby for high-street shops.
-
The Jovial Sailor Ripley
9 minutes
-
Co-op Food Ripley
3 minutes
-
RHS Garden Wisley
6 minutes
-
Guildford
10 minutes
-
Victoria Place Shopping Centre, Woking
14 minutes
-
The Jovial Sailor Ripley
9 minutes
-
Families at our new houses in Ripley have quality schools nearby. Walk 16 mins to St John’s CE Primary or drive to Goldsworth Primary. St John the Baptist School is just 9 mins by car, while Guildford College and the University of Surrey are both under 10 minutes away.
-
Send Church of England Primary School
16 minutes
-
Guildford College
6 minutes
-
The University of Surrey
7 minutes
-
St. John the Baptist School
9 minutes
-
Goldsworth Primary School
12 minutes
-
Send Church of England Primary School
16 minutes
-
Woking Station is a 12-minute drive from our new builds in Ripley, offering trains to London. The nearest bus stop is also only 4 minutes on foot. The A3 is just 2 minutes away, with the M25 reachable in 6 minutes. Best of all? Heathrow Airport is a quick 18 minutes away for smooth trips abroad
-
Nearest bus stop
4 minutes
-
A3
2 minutes
-
M25
6 minutes
-
Woking train station
12 minutes
-
Heathrow Airport
18 minutes
-
Nearest bus stop
4 minutes
Local area
From our new builds in Ripley, explore RHS Garden Wisley or Clandon Park just a short drive away. In the village, enjoy the farmers’ market or dine at award-winning The Anchor. Daily essentials are 3 mins away at the Co-op, with Woking’s Victoria Place nearby for high-street shops.
-
9 minutes
The Jovial Sailor Ripley
-
3 minutes
Co-op Food Ripley
-
6 minutes
RHS Garden Wisley
-
10 minutes
Guildford
-
14 minutes
Victoria Place Shopping Centre, Woking
Schools
Families at our new houses in Ripley have quality schools nearby. Walk 16 mins to St John’s CE Primary or drive to Goldsworth Primary. St John the Baptist School is just 9 mins by car, while Guildford College and the University of Surrey are both under 10 minutes away.
-
16 minutes
Send Church of England Primary School
-
6 minutes
Guildford College
-
7 minutes
The University of Surrey
-
9 minutes
St. John the Baptist School
-
12 minutes
Goldsworth Primary School
Transport
Woking Station is a 12-minute drive from our new builds in Ripley, offering trains to London. The nearest bus stop is also only 4 minutes on foot. The A3 is just 2 minutes away, with the M25 reachable in 6 minutes. Best of all? Heathrow Airport is a quick 18 minutes away for smooth trips abroad
-
4 minutes
Nearest bus stop
-
2 minutes
A3
-
6 minutes
M25
-
12 minutes
Woking train station
-
18 minutes
Heathrow Airport
Shared Ownership
In this section, you'll find lots of handy information about buying Shared Ownership home, including how to know if you're eligible, and what home improvements you can make.
How it worksNot sure if you're eligible?
How to applyHelp & advice
We've a whole host of guides covering lots of topics. So whether you're a first-time buyer, second stepper, Shared Ownership seller or existing home owner in need of some guidance, check out our help and advice section.
Find out moreWondering about your next steps?
Buying guidesSimilar Developments

Loxwood Fields
Alfold
Loxwood Fields is a new collection of two, three and four bedroom Shared Ownership homes in Alfold. With a Post Office, local shop, café and vets right nearby, everyday life ...

Ada Gardens
East Horsley
Our final home: save up to £500 off your legal fees!* Ada Gardens is a new collection of homes located in the village of East Horsley, we now have our last remaining one ...

Tillingbourne Gardens - Shared Ownership
Gomshall
Tillingbourne Gardens is a new collection of one, two, three and four bedroom Shared Ownership homes, set in the pretty village of Gomshall. These homes are now ready to move ...
Find Us
By appointment only.
Address
Allium Park
Burntcommon Lane
Ripley
GU23 6HD
We're award winning




